Apartment 30

















Virtual viewing

Property overview
Introducing Apartment 30, The Woodchester, a stunning brand new two-bedroom penthouse apartment offering far-reaching south-westerly views of the Malvern Hills from its private balcony. Located in Astley Villa, this apartment is just a short walk from the restaurant, bar, and all the amenities available at Battenhall House.
The spacious open-plan U-shaped kitchen and living / dining area provides an ideal space for modern living, seamlessly connected to the private balcony through French doors—also accessible from Bedroom One.
The apartment features two well-sized double bedrooms, with Bedroom One offering the added luxury of an ensuite, complete with a walk-in shower. A separate family bathroom provides additional convenience for visitors, and a handy utility cupboard offers extra storage space.
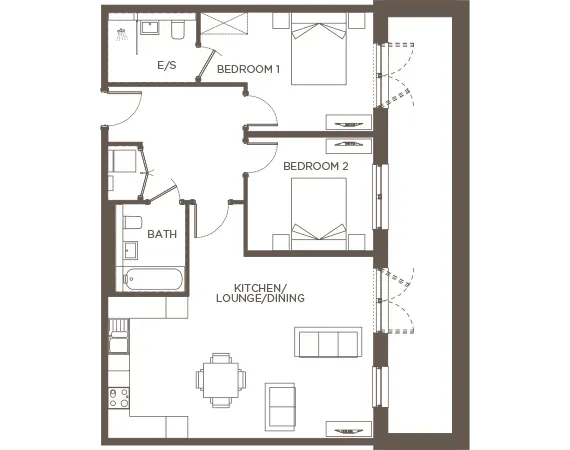
Floorplan
Specifications
| Room | Metric | Imperial |
|---|---|---|
| Lounge/Dining | 6.3m x 5.0m | 20'1" x 16'4" |
| Kitchen | 3.8m x 2.2m | 12'5" x 17'2" |
| Bedroom 1 | 4.6m x 3.3m | 15'1" x 10'8" |
| Ensuite | 2.4m x 1.9m | 7'10" x 6'2" |
| Bedroom 2 | 3.4m x 3.0m | 11'2" x 9'10" |
| Bathroom | 2.4m x 1.9m | 7'10" x 6'2" |
| Total Area | 85 sqm | 915 sqft |
MONTHLY FEE
The Monthly fee is currently £819.60 monthly/£9,835.20 yearly is payable for a 1-bed apartment or £870.91 monthly/£10,450.92for a 2-bed apartment. Increases annually based upon the higher of the previous January Retail Price Index % figure supplied by the ONS or the Annual Earnings Index.
DEFERRED DEVELOPMENT PAYMENT
When leaving or selling the property, a Deferred Development Payment is payable to the landlord. This is 6%, 8%, 10%, 12%, 14 or 16% of the selling price (occupancy of up to 1 year, 1 to 2 years, 2 to 3 years, 3 to 4 years, 4 to 5 years, and 5 to 6 years and over respectively).
For further information on all fees is available from the Key Facts and also, on the Deferred Development Payment and Sales Administration Fee, from the Disclosure Document above. The Sales Team are happy to answer any queries.
Start your retirement journey
Contact our team
Try before you buy
Visit us
Get in Touch
Mount Battenhall Retirement Village
Battenhall House, Battenhall Avenue, Worcester WR5 2JD
Opening times
Monday to Saturday, 10am-4pm
Sales Team
Call: 01905 347121
sales@mountbattenhall.co.uk
Village management office:
Call: 01905 347269
generalmanager@mountbattenhall.co.uk
I'm already enjoying life at Mount Battenhall. There's a nice atmosphere, and everyone - both the staff and other residents - have been very friendly and helpful. Coming from living alone in Southend, it's great to have more people around.
Alan, homeowner at Mount Battenhall
The relaxed atmosphere is what I love most. Whether you are in your flat, in the bar having drinks with friends, or walking around, the whole area is so peaceful. It's not too quiet, though - you don't feel lonely. It's the sort of place that gives you a warm hug, everybody welcomes you.
Sue & Richard, homeowners at Mount Battenhall
I was lucky to get the view of the Malvern Hills that I wanted. Looking out my window, it's a changing picture every day - every season is beautiful. Everything you need is here, even my cat has settled in beautifully.
Val, homeowner at Mount Battenhall
The process of visiting and deciding to move here was very smooth. I came several times to see my son in the area, and then did the 'try before you buy' stay for a couple of nights, which was really useful to get a feel for the place. After that, I had no hesitation in putting down a deposit on an apartment.
Alan, homeowner at Mount Battenhall
There are plenty of things happening here. There's a monthly gathering often with visiting entertainment, like the ukulele group we had recently. We’ve also had a local history talk, make-up demonstrations, and a Christmas fair. There’s a hairdresser here Wednesday to Saturday and a beautician visits monthly. Quite a few ladies join the Yoga class on a Monday. You can be as involved as you want.
Sue & Richard, homeowners at Mount Battenhall
The welcome pack was a lovely gesture that really helped with the transition. I’d already met many lovely people here before I moved, so I don't feel like I've come somewhere unfamiliar. I'm looking forward to establishing friendships in this lovely environment.
Val, homeowner at Mount Battenhall
The build quality is first-class. All the finishings are excellent, even the plastering and the painting. It was like a really expensive hotel to walk into, and that’s before you get to your apartment. The sanitary wear in the bathrooms and the tiling are high-quality, and that’s important because you know it’s going to last.
Sue & Richard, homeowners at Mount Battenhall
Similar Properties

Apartment 22

Apartment 20

Apartment 29





